实地核验
89.9 万
6885.0元/㎡
首付及税费详请咨询经纪人
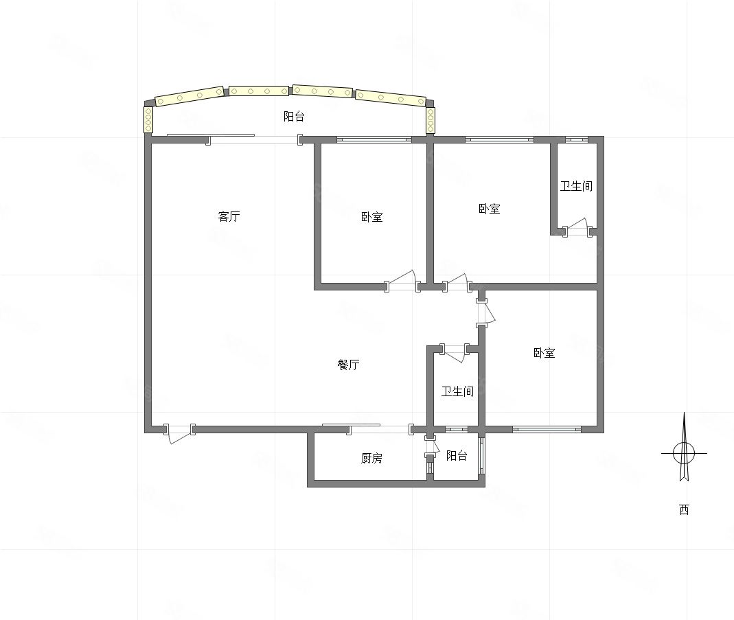
3室2厅2卫
高层(共24层)
130.58㎡
精装修
西
2006年竣工/普通住宅











足不出户 专家讲解
| 交易信息 | 产权性质商品房住宅 | 物业类型普通住宅 |
| 产权年限70年产权 | 房本年限满五年 | |
| 参考预算首付13万,月供3284元 | ||
| 发布信息 | 发布公司 到家了 | |
| 营业执照91500107MA5U4H175D | ||
轨道交通
出北门步行800米到蚂蟥梁公交站有4条公交站线路,乘坐820路经5站到五里店,9站到重庆火车北站。
小区户型
小区D栋两梯六户,*大户型三房,建面125平,套内110平,是朝东的,户型很方正,没有浪费,采光好
小区不足
小区运动设施较少,绿化环境不足,车位较紧张